Espace propriétaire
fr
Alerte e-mail

Votre recherche

Sous-offre
Coup de coeur
Menton (06500)

6 pièces - 106,52 m²

Etage entier d'Immeuble de 106 m² pour investir ou vivre en famille à Menton

380 000 €
Ref : 325
A propos de ce bien

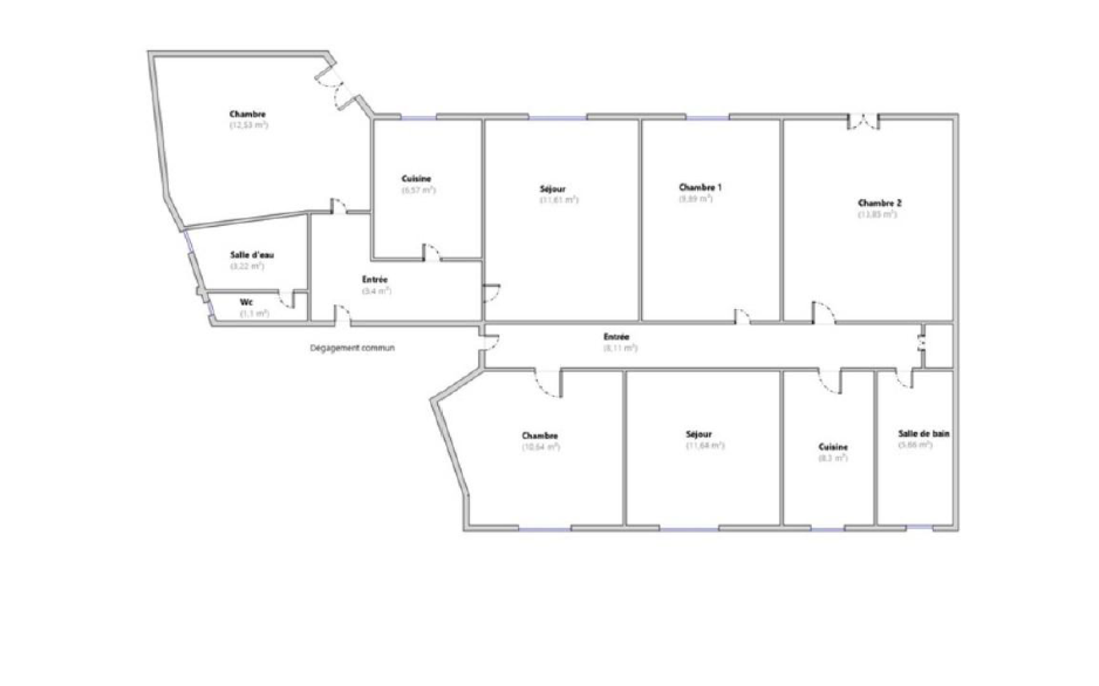
À vendre à Menton, à seulement 100 mètres de la plage, découvrez ces 2 appartements, formant 1 étage complet idéal pour un investissement ou une résidence familiale.

Composé de deux appartements distincts — un 2 pièces et un 3 pièces facilement transformable en 4 pièces grâce à une pièce attenante — cet étage offre un potentiel exceptionnel.

Il necessite une totale réhabilitation (électricité, peinture, éventuellement plomberie), laissant libre cours à vos envies d’aménagement et de valorisation.

Un bien rare, mêlant charme, potentiel et emplacement privilégié, à saisir rapidement !

Descriptif de ce bien
Général
Code postal 06500
Surface loi Carrez (m²) 106,50 m²
Nombre de chambre(s) 4
Nombre de pièces 6
Etage 1
Nombre de niveaux 2
Ascenseur NON
Détails
Cuisine Séparée
Mode de chauffage Autre
Type de chauffage Air pulsé
Format de chauffage Individuel
Balcon NON
Terrasse NON
Sous/sol AVEC
Cave NON
Exposition Nord-Sud
Terrain piscinable NON
Financier
Prix de vente honoraires TTC inclus 380 000 €
Prix de vente honoraires TTC exclus 357 200 €
Honoraires TTC à la charge acquéreur 6,38 %
Taxe foncière annuelle 1 100 €
Energie
DPE GES
Autour du bien
  • Commerces et santé
  • Loisirs
  • Ecoles
  • Transports
  • Pratique
Contacter pour ce bien
L'agence
Téléphone 0674458865
Adresse
3 rue Francois Ratto 06190 Roquebrune-Cap-Martin

* Champ obligatoire

Les informations recueillies sur ce formulaire sont enregistrées dans un fichier informatisé par La Boite Immo agissant comme Sous-traitant du traitement pour la gestion de la clientèle/prospects de l'Agence / du Réseau qui reste Responsable du Traitement de vos Données personnelles. La base légale du traitement repose sur l'intérêt légitime de l'Agence / du Réseau. Elles sont conservées jusqu'à demande de suppression et sont destinées à l'Agence / au Réseau. Conformément à la loi « informatique et libertés », vous disposez des droits d’accès, de rectification, d’effacement, d’opposition, de limitation et de portabilité de vos données. Vous pouvez retirer votre consentement à tout moment en contactant directement l’Agence / Le Réseau. Consultez le site https://cnil.fr/fr pour plus d’informations sur vos droits. Si vous estimez, après avoir contacté l'Agence / le Réseau, que vos droits « Informatique et Libertés » ne sont pas respectés, vous pouvez adresser une réclamation à la CNIL. Nous vous informons de l’existence de la liste d'opposition au démarchage téléphonique « Bloctel », sur laquelle vous pouvez vous inscrire ici : https://www.bloctel.gouv.fr Dans le cadre de la protection des Données personnelles, nous vous invitons à ne pas inscrire de Données sensibles dans le champ de saisie libre.
Ce site est protégé par reCAPTCHA, les Politiques de Confidentialité et les Conditions d'Utilisation de Google s'appliquent.

Découvrir nos outils